T30天正结构软件V1.0
一、功能概述
T30天正结构软件T30-Asd V1.0支持Win10 64位AutoCAD2013-2025平台,Win11 64位AutoCAD2021-2025平台。是一款专业化 、智能化的结构设计软件。
软件符合《混凝土结构通用规范 GB 55008-2021》、《建筑结构荷载规范 GB 50009-2012》、《建筑地基基础设计规范 GB 50007-2011》、《建筑抗震设计规范 GB 55001-2010(2016年版》等;软件采用智能化的自定义实体技术,完全自动处理构件之间的相互关系,支持双击编辑修改天正对象;软件涉及结构专业面广,涵盖剪力墙、梁、柱子、楼板、楼梯等构件设计,可以从结构计算软件数据自动生成模板图、自动生成平法施工图,完成初步计算检查;图形接口模块可以让设计师轻松地完成从计算软件到绘图软件的转换,把更多的精力投入到对工程的技术革新上;软件在高效、快捷地进行二维图纸绘制的同时,三维效果同步生成,同步实现二维平面和三维立体的切换,整个工程一目了然,并且,可以与天正建筑、暖通、给排水、电气进行协同检查,实现三维协同设计。
二、软件功能介绍
(一) 软件界面
简洁清晰的屏幕菜单,包括图形接口、柱子设计、梁设计、剪力墙设计、楼板设计、基础计算、楼梯计算、专业标注等模块,用户可自定义菜单的不同风格模式;软件提供屏幕菜单、快捷菜单、快捷工具条、快捷键等多种功能调用操作方式,用户可自定义工具条和快捷键的具体内容。


(二) 开放性的软件设置
* 基本设定
*高级选项
(三) 完备的图形数据接口
在结构设计中,主流结构计算软件为PKPM和YJK,天正结构软件提供了两款结构计算软件的数据和图纸接口。可以把结构计算软件的建模结果,通过数据,转换为天正跟结构图层、梁、柱、剪力墙、楼板构件,自动快速,解决了设计师在CAD中重复绘制模板图的工作。同时,可以将结构计算软件绘制的平法施工图,转换Wie天正结构对象,例如梁集中标注对象、边缘构件对象等,方便细部修改,可实现快速出施工图。
另外,图形接口中的导入建筑命令,可以把天正建筑平面图转换成框架结构、框剪结构或者剪力墙结构平面图。转换的内容包括:天正建筑图层转换为天正结构图层,建筑的墙转换为结构的梁或者墙,建筑的门窗转换为结构的连梁和洞口。通过不同的条件设置,可以对不同构件进行过滤,只转换需要转换的构件。该功能的目的主要是完成一些建筑图到结构图自动转化,根据图纸的复杂性还需要不同程度的细部修改。

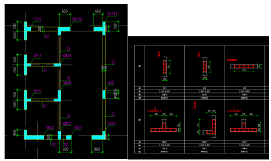
(四) 柱子设计
提供不同截面形状柱子的绘制功能。可快速绘制柱、集中标注、原位标注等。可自动导入结构计算软件设计结果,支持编号系统自动检查、调整; 支持二维线图纸转换为天正实体;支持根据结构设计结果数据进行初步的出图前检查;支持平面布置图与柱表联动修改;支持柱表法和平面法两种绘图方式的一键相互转换;支持实时查看柱配筋率、配箍率。
(五) 梁设计
梁设计模块可快速绘制梁、集中标注、原位标注、附加吊筋、附加箍筋等。可快速绘制梁、集中标注、原位标注、附加吊筋、附加箍筋等。可自动导入结构计算软件设计结果。支持编号系统自动检查、调整; 支持根据结构设计结果数据进行初步的出图前检查;支持实时查看梁配筋率、配箍率。
(六) 剪力墙设计
软件提供方便快捷的剪力墙设计功能,可完成结构设计剪力墙设计需求。可快速绘制剪力墙、边缘构件、墙表等。可自动导入结构计算软件设计结果,满足各种设计需求。支持编号系统自动检查、调整;支持自动从结构计算软件数据生成边缘构件;支持根据结构设计结果数据进行初步的出图前检查;支持平面布置图与墙柱表联动修改;支持实时查看墙柱柱配筋率、配箍率。
(七) 楼板设计
软件提供方便快捷的楼板设计功能,可快速绘制楼板、板洞等。可自动导入结构计算软件设计结果,满足各种设计需求。支持归并负筋长度、调整楼板钢筋; 支持自动生成楼板剖切图;支持各种画法间一键转换。
三、T30天正结构软件 V1.0的新特性
软件改进:
*新增【柱特性】命令,可实现查看柱特性,修改柱特性等功能,从而实现图面相关联柱配筋的修改;
*新增【柱画法转换】命令,可实现截面注写方式的柱图转换成列表注写方式的柱图;
*新增【柱配筋率】命令,可实现柱配筋率的实时计算和显示;
新增【柱配箍率】命令,可实现柱配箍率的实时计算和显示;
*新增【柱出图前检查】命令,可实现对比修改后图纸数据与原始数据,并将不同处的对比结果以列表的形式呈现;
*新增【梁配筋/配箍率】命令,可实现梁配筋率、配箍率的实时计算和显示;
*新增【墙柱特性】命令,可实现查看墙柱特性,修改墙柱特性等功能,从而实现图面相关联墙柱配筋的修改;
*新增【墙身画法转换】命令,可实现图纸中墙身由截面画法转换为列表画法;
*新增【墙梁画法转换】命令,可实现图纸中墙梁由截面画法转换为列表画法;
*新增【柱画法转换】命令,可实现截面注写方式的柱图转换成列表注写方式的柱图;
*新增【墙柱配筋率】命令,可实现柱配筋率的实时计算和显示;
新增【墙柱配箍率】命令,可实现柱配箍率的实时计算和显示;
*新增【墙出图前检查】命令,可实现对比修改后图纸数据与原始数据,并将不同处的对比结果以列表的形式呈现;
*新增【梁配筋/配箍率】命令,可实现梁配筋率、配箍率的实时计算和显示;
*改进楼板【画法转换】命令,可实现通过界面参数的修改,将楼板施工图,在平法、传统画法和准平法画法间进行转换;
*改进【楼梯】模块,其中【参数设定】命令细分了休息平台、楼层处和踏步的面层;【建楼梯间】命令,可实现多种中间层的设置;【楼梯组装】命令,可选取多种中间标准层进行组装;【绘楼梯图】命令,可实现多组楼梯,通过不同选择,进行绘制楼梯图。
*新增【转化表格】命令,可以把散的文字和线转化成天正表格对象或输出到EXCEL中;
*新增【读入Word】命令,可以将Word中的表格以天正表格的形式导入到DWG中;
*新增【转出WPS】命令,提供了天正与WPS之间交换表格文件的接口,可以将天正表格对象的内容输出到WPS文件中,还可以根据WPS中的数据表更新原有的天正表格;
*新增【读入WPS】命令,可以将WPSWord和WPSExcel中的表格以天正表格的形式导入到DWG中,还可以根据WPS中的数据表更新原有的天正表格;
*新增【表格编辑】模块,提供【全屏编辑】、【拆分表格】、【合并表格】、【表列编辑】、【表行编辑】、【增加表行】和【删除表行】几个命令,可对天正表格,进行编辑;
*新增【单元编辑】模块,提供【单元编辑】、【单元递增】、【单元复制】、【单元累计】、【单元合并】、【撤销合并】、【单元拆分】、【单元插图】和【单元清空】几个命令,可对天正表格中的单元,进行编辑;
*新增【标高符号】模块,提供【标高标注】、【标高检查】、【标高改值】和【标高对齐】几个命令,可绘制画法符合国家制图规范的工程符号图例,并进行相应编辑、修改;






京公网安备11010802046957号